Trilocale in vendita

Quarto, Via Consolare Campana - Via Campana - Bivio
€ 235.000
3 locali 3 locali
100 Mq 100 Mq
2 bagni 2 bagni

Trilocale in vendita

Quarto, Via Consolare Campana - Via Campana - Bivio

Descrizione annuncio

In Via Consolare Campana, posizione strategica, a 500 mt a piedi dalla Circumflegrea di Quarto Officina, a 750 mt a piedi dalla fermata della Metropolitana Quarto di Marano, a 800 mt dallo svincolo della tangenziale e anche vicino a tutte le attività commerciali utili al quotidiano (farmacia, supermercati, poste, ecc.) e vicino al Circolo Didattico Falcone, scuola materna ed elementare.

Proponiamo in vendita con INCARICO IN ESCLUSIVA, un appartamento con spazi accoglienti e ben organizzati sito ad un primo piano alto, all’interno del PARCO CINZIA, parco tranquillo, che garantisce un ambiente sereno e riservato.

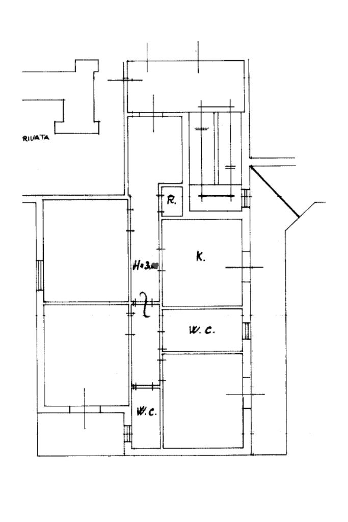
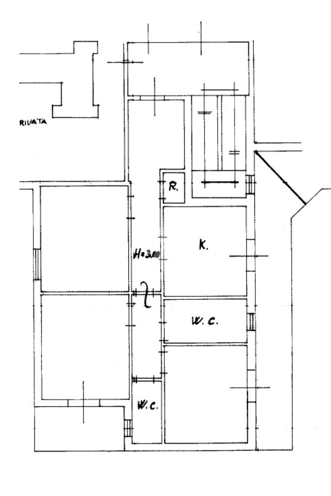
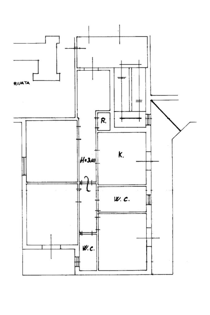
La soluzione è così composta: entrando dalla porta d’ingresso si viene accolti da un comodo ingresso, uno spazio che dà subito respiro e accompagna lo sguardo verso il resto della casa, distribuendo in modo ordinato tutti gli ambienti. Proseguendo, troviamo alla nostra sinitra il salone e alla nostra destra la cucina abitale con uscita ad un primo balcone spazioso e perfetto per momenti di relax all'aperto, con esposizione ad est. Una porta divide la zona giorno dalla zona notte composta da camera da letto matrimoniale con uscita ad un secondo balcone con esposizione sud , cameretta con uscita allo stesso bnalcone della cucina e due bagni, uno padronale ed uno di servizio entrmabi con piatto doccia. Infine l'appartamento gode anche di un comodo ripostiglio.

A completare l'immobile, come pertinenza, un box auto di proprietà ed un posto auto condominiale nel parco non assegnato.

La zona è ottimale per chi è alla ricerca di una soluzione centrale, senza doversi spostare necessariamente con l'auto.

E’ possibile visionare l’immobile tutti i giorni previo avviso telefonico; contattaci al numero 081.876 82 40 (anche whatsapp) e fissa il tuo primo appuntamento.

Mostra tutto

Nelle vicinanze

Trasporto pubblico Trasporto pubblico
Quarto Officina
Quarto Officina
400 m
Quarto
Quarto
1,1 Km
Via Campana - Scuola Elementare G. Falcone
Via Campana - Scuola Elementare G. Falcone
220 m
Corso Italia - Civico N° 428
Corso Italia - Civico N° 428
220 m
Quarto di Marano
Quarto di Marano
520 m
Scuole Scuole
Scuole
860 m
Multicenter School srl
1,5 Km
Farmacia Farmacia
Farmacia Antomari
380 m
Farmacia
430 m
Supermercati Supermercati
MD Discount
260 m
Supermercati
370 m
Supermercato Decò
730 m
Supermercati Decò
1,2 Km
IperCOOP
1,2 Km
Negozi Negozi
Negozi
700 m
Negozio di orto-frutta
1,3 Km
Bar Bar
Bar
1,3 Km
Ristoranti Ristoranti
Ristoranti
2,2 Km
La Bottega dei Sapori
2,9 Km
L'Edera
3,0 Km
Mostra tutto

Caratteristiche

Rif.:
61186530
Piano:
1 di 3 (Piano medio)
Box:
1
Posti auto:
1
Balconi:
2
Camere da letto:
2
Mostra tutto
Prezzo Prezzo
€ 235.000
Rata mutuo Rata mutuo
€ 1.091 / mese
Spese annue Spese annue
€ 636
Proponi il tuo prezzoProponi il tuo prezzo

Classe Energetica

G
G
G
G
G
G
G
G
G
EP globale non rinnovabile:
1.00 kW h/m² anno
EP globale rinnovabile:
1.00 kW h/m² anno
EP invernale del fabbricato:
EP estiva del fabbricato:
Anno di costruzione:
1980
Riscaldamento:
Autonomo
Tipo impianto:
A radiatori
Tipo alimentazione:
Metano

Ti interessa visionare l'immobile?

Fissa un appuntamento  Fissa un appuntamento

Richiedi informazioni

Clicca su Leggi per aprire l'informativa
* Questi campi sono obbligatori

Calcola il tuo mutuo

Semplice e senza impegno
Anticipo

( % )
Mutuo

( % )

pochi semplici passi

inserisci i tuoi dati
Questionario completato
Grazie per aver richiesto un appuntamento senza impegno con un nostro Consulente del Credito e Assicurativo.

Hai inserito correttamente tutti i dati necessari e a breve riceverai una e-mail con un link da convalidare per inviare i tuoi dati.
Affiliato
Studio Quarto Srl
Via Campana, 430-432 80010 Quarto (NA)

Il nostro staff


  • Carlo Carandente
    Affiliato

  • Patrizia Pugliese
    Coordinatrice

  • Maddalena Esposito
    Responsabile
Via Campana, 430-432 80010 Quarto (NA)
Zona: Quarto Via Campana e Monteruscello
Mostra su mappa
Orari: 09:00 - 13:00 / 16.00 - 20.00 - Sabato: 9.00 - 13.00
Affiliato
Studio Quarto Srl
Via Campana, 430-432 80010 Quarto (NA)

2026 Tecnocasa Franchising S.p.A. - P. IVA 08365160152 - Via Monte Bianco 60/A 20089 Rozzano (MI). Ogni agenzia ha un proprio titolare ed è autonoma. Privacy policy | Policy utilizzo | Cookie policy